Fuller Overby

Nebo House

2022

AIA Virginia Merit Award Residential Design 2023

Featured in Architectural Record Record Houses 2023, Inform, Dezeen & Design Milk

The site for the Nebo House is a long, narrow plot in the Appalachian foothills that slopes downward to Lake James. The main floor is embedded into the hillside, like a hunter’s blind, with a central courtyard splitting the primary program into two wings.

To the East of the courtyard are social areas and to the West is a private sleeping and bathing suite—Day and Night. A hall which acts as a mechanical and structural spine along the rear retaining wall connects the private and public spaces. The larger, public zones of the interior radiate outward from the courtyard and gradually break up into more intimate niches around the periphery that provide semi-private moments within the open living areas.

Views are focused outward to the lake, while southern light filters in from clerestory windows above. A sculpted cantilever staircase slices upward to the entry and guest rooms, forming a continuous three dimensional void capped by a skylight at its peak. Above grade, the house appears as a cluster of small pavilions along the hillside, framing the lake and mountains beyond.

Photography:  Paul Warchol
Structural Engineer:   Nat Oppenheimer, Silman
Mechanical Engineer:  Mark Cambria, Fusion Systems

Ackerman Farmhouse

2023

NYCxDesign Interior Design Magazine Honoree 2024

Featured in Interni, The Wall Street Journal, The Wall Street Journal (Print), Dwell

The farmhouse, a 1700’s homestead for the Dutch Ackerman family, sits aside the Hackensack River on terrain largely untouched from the rolling NJ countryside of the 18th century. The interior of the house, particularly the upper floors, were a different matter.  The past two and a half centuries were marked by awkward subdivisions and hasty finishes. The consequence was an excess of small, poorly lit rooms, with most of the original features partially or fully obscured by partitions and paint.

This historic building, which is listed on the National Register of Historic Places (the drawings and photographs are archived in the Library of Congress), ached for a reveal of its structural beauty. The folds of a gambrel roof, supported by a framework of hand hewn timbers, rest upon two foot thick exterior walls made of New Jersey sandstone, the same stone used to build New York City’s iconic brownstones. Sporadic small openings, sized from the practical concerns of 18th century life, are scattered throughout.  The renovation stripped away the muddled infill of walls and dropped ceilings to unearth the largely hidden wooden structure and angled roof form. The second floor is an open plan with a central core encircled by a ring of spaces wrapped around the newly exposed timber elements. These various areas can be opened or closed with oversized sliding panels for particular degrees of privacy in accord with the client’s desire for a flexible design. The main living space of the second floor lays to the south, receiving natural light throughout the day. The primary bedroom, bath, and dressing room are an atmospheric sequence to the north, interconnected by four foot sliding panels. In the bedroom white millwork seeps into the sleeping space from the stair hall through pivoting double doors, hand applied tadelakt coat the wet area walls, and the dressing is wrapped on all sides with waxed wood cabinetry and paneling.

The third floor was partially removed to flood the second floor living space with natural light. Floating amid the timber structure is a sculptural steel staircase which ascends to a guest suite nestled within the uppermost roof. The sharp central pitch was smoothed into a soft curve to allow for an uninterrupted wash of light across the ceiling. Throughout, millwork elements make harmonious the eccentric angles and irregularities of the old house. Concealed within these new elements is a high-performance heat pump conditioning system, LED lighting and storage. A restored wide plank oak floor, formerly hidden under layers of wall to wall carpeting, glows throughout the day. 

The ground floor features a large living room within the original 1734 house which was added onto in 1787 to complete the full building envelope. This space, formerly the locus of 18th century domestic activity and efficient for the functioning farm, proved to be an impediment in a contemporary time. Minute openings, a low ceiling, and lack of sufficient electrical wiring meant the room sat in darkness day to night. Consequently the house sat on the market for over a year prior to its purchase by the current clients. With the approval of the local Commission of Architecural Review the space is now animated with a steel framed glazing system in the south wall opening onto the Hackensack River. Daylight and the landscape flood the interior, bringing new life to the house.

Photography:  Paul Warchol
GC:  Alex Chay, AAA General Contracting

Structural Engineer, Historic Structure:   Joe DiPompeo, Structural Workshop
Structural Engineer, Steel Stair:   Nat Oppenheimer, Silman
Mechanical Engineer:  Mark Cambria, Fusion Systems

Soho Loft

2021

Featured in Interni Magazine, “L’Equilibrio Armonico” July/August 2022 & ArchDaily

Three kinds of spaces are woven together within a classic Soho cast iron building – a working studio, a gallery, and a living space. The client, a painter, commissioned a gut renovation of neglected loft directly above the Dia Earth Room, located in one of the original Fluxhouse cooperatives which generated the 1970’s transformation of Soho.

In this renovation a millwork Pangaea is inserted into the 19th century structural framework, unfolding from a centralized coffered space into program specific areas of the project which are tailored to site conditions and pragmatic requirements. The studio embraces the windowed façade, the domestic areas are a thickened permeable perimeter, and the linear entry gallery frames views both close and beyond with various degrees of privacy. The spaces oscillate between openness and moments of enclosure, layered through the definition of cabinetry volumes, operable planes, and wrapped existing structural elements.

This project commenced in the studio of Diane Lewis where Emma Fuller was an Associate. Upon the death of Diane, Fuller/Overby continued the design work and oversaw construction. This project is a testament to personal, intellectual and professional kinship.

Diane Lewis & Fuller/Overby
Photography:  Paul Warchol
Contractor:   Rosario D’Armetta, Sicula Renovations

Houselet

2025

AIA Virginia Small Projects Award 2025

A ground up extension to a classic Cape Cod house in Richmond, VA. This age in place addition offers a bedroom suite to the ground floor; the space can transition to an Accessory Dwelling Unit or in-home office for future homeowners.

The addition is set the rear yard, peeking out from behind the main house. The offset allows for windows in all cardinal directions, creates alignments with the internal circulation of the suite and house, and minimizes the intrusion upon the lot’s green space. The primary volume is grafted onto the original structure via an enclosed light filled passage which provides a secondary entrance and direct circulation to the deck for entertaining.

Glazed openings vary in accordance to the programmatic moment and emphasize the exterior tectonic. The mildly sloped roof is buttressed on the three free facades with dimensional pop-outs. These multifunctional structural pockets absorb the forces of the roof and create storage niches. The open vaulted interior frames views of the garden and allows light to travel uninterrupted through the bedroom, bath, and dressing room.

Photography:  Paul Warchol
GC:  Pat Madden, Peregrine Builders

Structural Engineer:   Nat Oppenheimer, Silman/Tylin

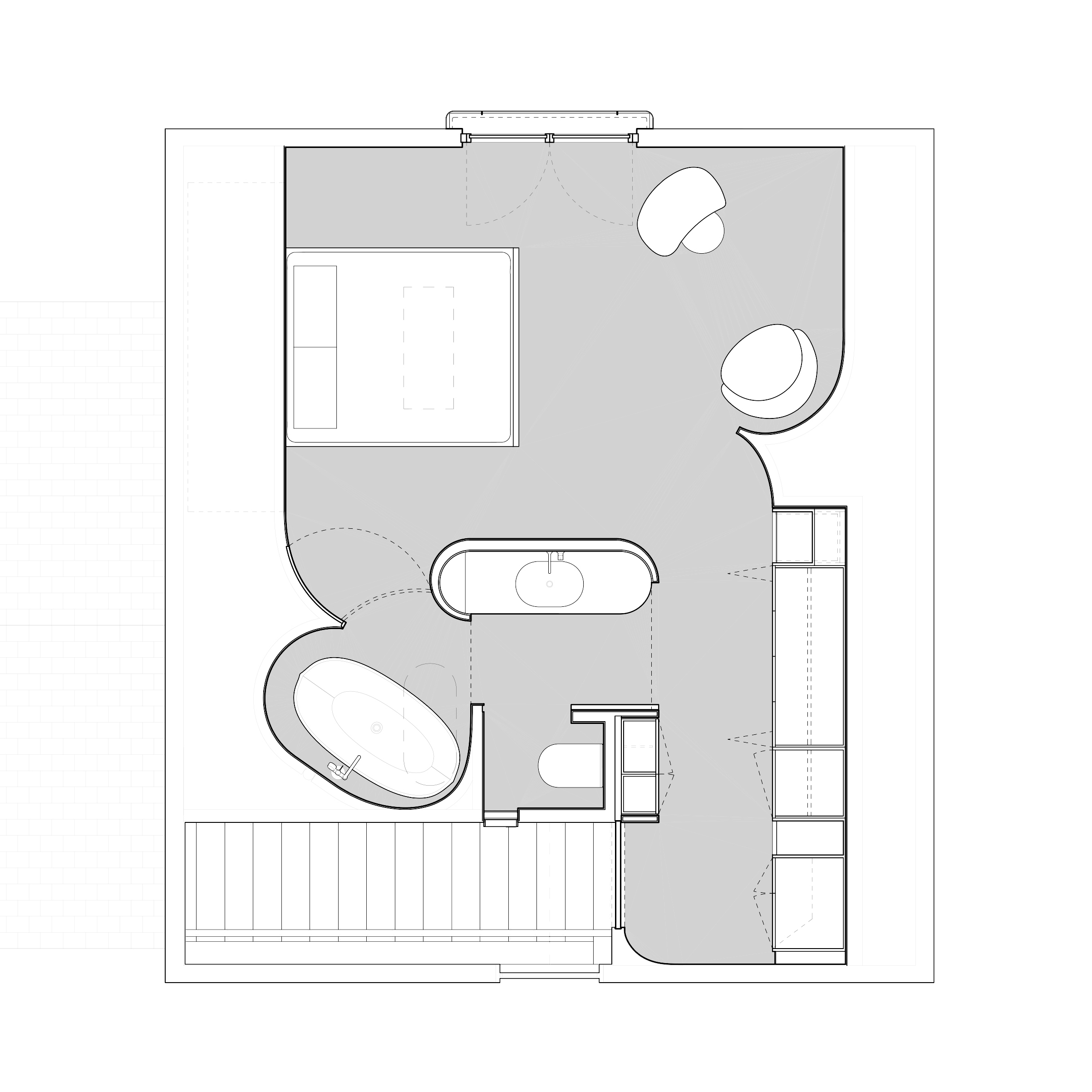
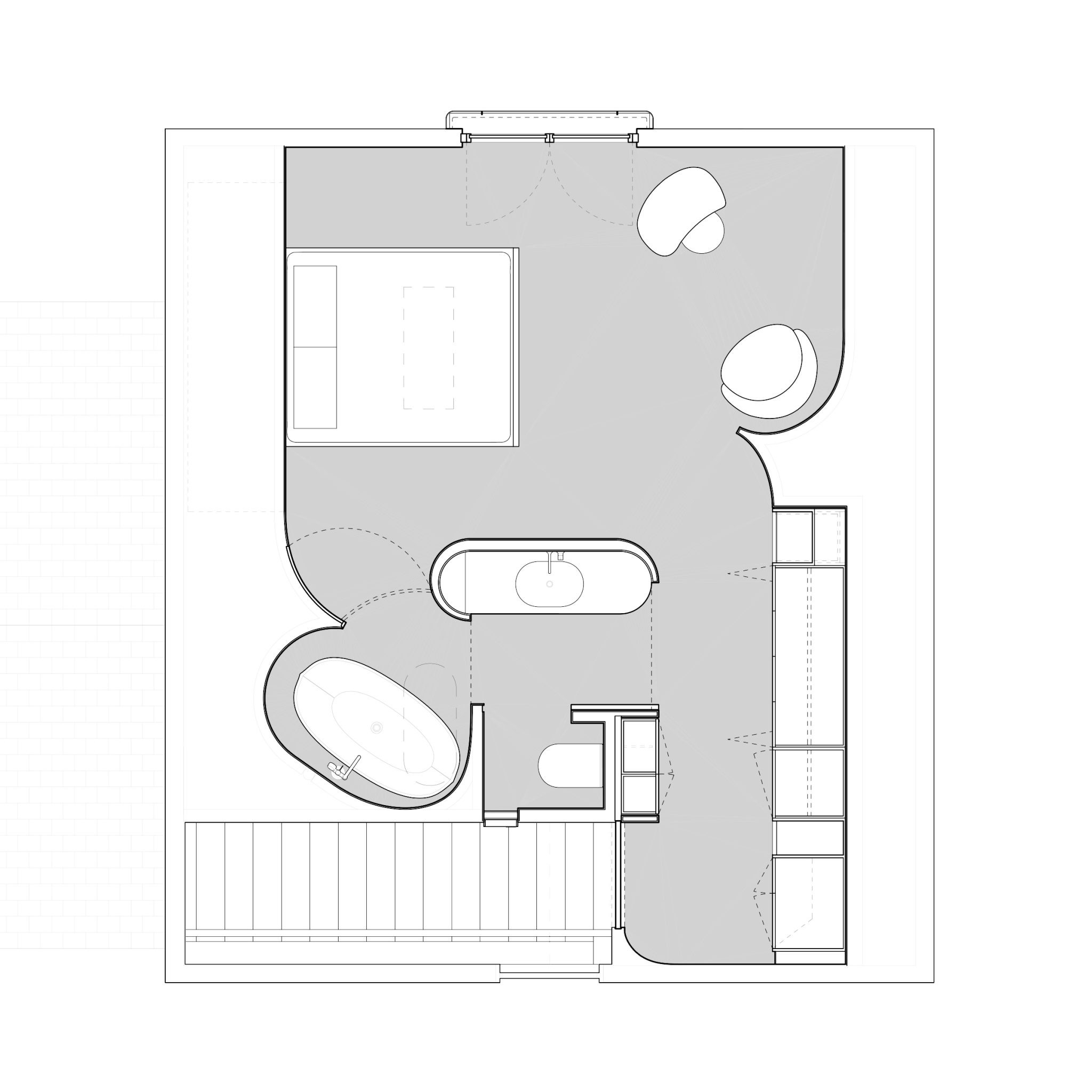
Private Chambers

Construction 2025

A new bedroom, bath and dressing suite on the upper floor of a Southampton home. Currently in construction, completion scheduled for mid summer 2025.

Southampton Studio

2023

A painter’s studio, archive & small gallery within a classic Long Island residence. Domestic portions of the house around the main courtyard were renovated into an artistic program with a subterranean storage suite below.

Photography:  Paul Warchol

Wetlands House

Construction Fall 2024 – 2025

A new construction house set within the wetlands of rural New Jersey. Two 60′ long sawtooth volumes face the northern light. A creek to the southern edge of the site delineates the adjacent state park and natural preserve. A herpetologist has been retained for the project.

Richmond Studio

Construction 2025

Adaptive re-use of an existing accessory building in a historically designated district of Richmond, Virginia. Construction scheduled for 2025-26, additional photos & information forthcoming.

Diversions

ongoing

Featured in the Smithsonian Craft Show, New Artists 2022, Washington, DC & the Visual Arts Center Craft & Design Show, October 2022, Richmond, VA

Diversions is a furniture series that uses discarded bentwood café chairs as raw material for new compositions. The Thonet chair design was a progenitor of the modern movement, the first to wed 19th century industrial fabrication with localized labor. Starting in the 1860’s, light-weight factory formed wood components were flat-packed, shipped around the world, and assembled upon arrival. Akin to Ikea, this occurred at massive scale and enjoyed great popularity.

These chairs can now be found in various states from debilitating decay to careful preservation. We rescue the castaways headed to landfills and begin disassembly, returning the chairs to their original state of parts. These parts are then chopped, spliced, and jointed together to form new tableaus. Our curvatures create light fixtures, tables, planters, wall hangers. Each component of the chair is considered in both design and ecology; metal leg brackets become wall affixing hardware and caning comes from a local repair shop that offers us the leftover cords.

The new pieces explore different methods of construction: side pegged, pierced, friction jointed; all with unique consequence. The configurations are not drawn or composed beforehand, but rather worked in the moment. We approach them as tectonic sketches, freely assembling predetermined parts to arrive at unanticipated forms.

In 2019 Emma Fuller and Michael Overby established Fuller/Overby Architecture. The work spans from new construction to adaptive reuse, renovation, exhibition, furniture and lighting.

AWARDS

  • AIA Virginia Small Projects Houselet  2025
  • NYCxDESIGN Interior Design Magazine Honoree Ackerman Farmhouse  2024
  • AIA Virginia Residential Design Nebo House  2023
  • Architectural Record Record Houses Annual Issue Nebo House  2023
  • The Storefront for Community Design Potterfield Design Education Award  2016

PRESS

  • Interni “American Farmhouse” No.5 May 2025
  • The Wall Street Journal (print) “Let There Be Light” M7-M8 October 4 2024
  • The Wall Street Journal (digital) “Restoring This Historic New Jersey Home Took Time, Patience and a $426,000 Budget” September 29 2024
  • Inform “Fuller/Overby redefines the lakeside respite with a courtyard house in cabin country” 2024
  • Dwell “The Most Shocking Before & After Renovations of 2023” 
  • Dwell “Before & After: Old Beams Meet a New Metal Staircase in a 1700s Farmhouse in New Jersey” 2023
  • Design Milk “A North Carolina lakeside house made of stacked pavilions” 2023
  • Dezeen “Fuller/Overby stacks cypress-wrapped spaces” 2023
  • Architectural Record “Fuller/Overby’s Lakeside House Strikes up a Conversation Between the Whole and its Parts” 2023
  • Interni  “INside Architecture: L’Equilibrio Armonico”  No.8 2022
  • Style Weekly “The Branch Museum’s ‘Drawing on History’ Joins the Rethinking of Richmond’s Urban Neighborhoods” 2016
  • Richmond Magazine “Talking Buildings” Exhibition article and interview 2015
  • Style Weekly “Richmond as a Work of Art: Architectural exhibit offers refreshing and challenging view of the city’s infrastructure” 2015

Emma Fuller

Emma’s design work is laced with research and writing. Recognition includes fellowships with The Architectural League/NYSCA, the Maryland Historical Society, and the Institute for Public Architecture; in addition to support from CultureWorks and The Storefront for Community Design. She is a graduate of Cooper Union and the former associate of Diane Lewis Architect.

Michael Overby

Michael is a licensed architect with over 20 years of experience in residential, commercial, and cultural projects. He is a graduate of the Cooper Union, holds NCARB certification, and is registered to practice architecture in NY, NJ, VA, and NC. Prior to forming Fuller/Overby, he was an associate with the firm of Reiser+Umemoto.

instagram

t:212.388.0094
info@fulleroverby.com